Wingerdpark 28

2724 RE Zoetermeer

Vraagprijs

€ 265.000 k.k.

Soort
Portiekflat
Type
Bestaande bouw
Oppervlakte
52 m²
Slaapkamers
1
Energielabel
C
Bouwjaar
1978

Beschrijving

Wonen op een aantrekkelijke en rustige locatie aan Park Seghweart. Dit nette tweekamerappartement op de eerste etage is verzorgd afgewerkt en direct te betrekken. De lichte woonkamer geeft toegang tot het zonnige balkon op het zuiden, waar u heerlijk van de zon kunt genieten. De badkamer is in 2023 vernieuwd en modern uitgevoerd, wat zorgt voor extra comfort en een frisse uitstraling.

De ligging is bijzonder prettig, met Park Seghweart letterlijk om de hoek voor een wandeling of ontspanning in het groen. Daarnaast bevinden wijkwinkelcentra Seghweart, openbaar vervoer en uitvalswegen zich op korte afstand, waardoor u hier rustig woont met alle dagelijkse voorzieningen binnen handbereik.

Voor meer informatie kijk op Wingerdpark28.nl

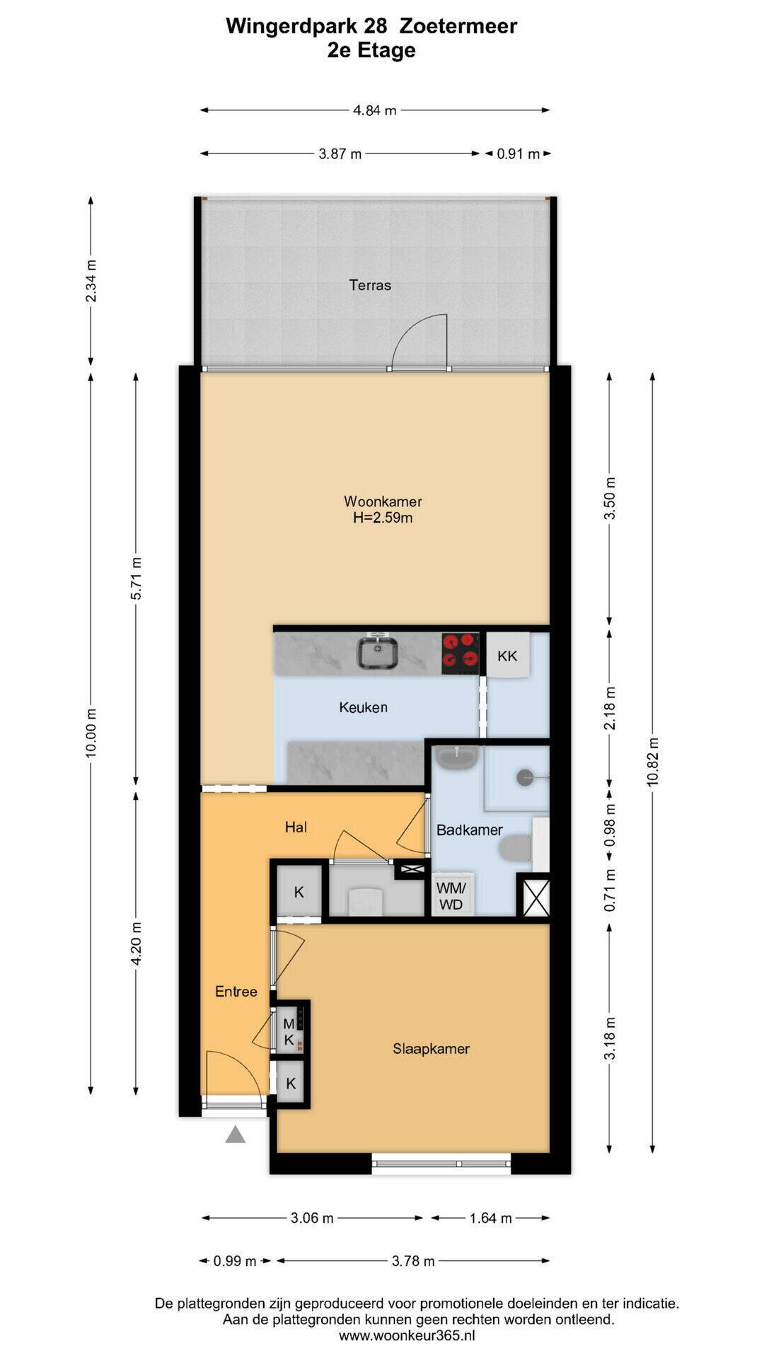
Indeling
Afgesloten entree met brievenbussen en trapopgang naar de woningen. Via de buitenzijde is de privé (fietsen)berging op de begane grond bereikbaar.

Woonverdieping (1e etage):
Via de entree komt u binnen in de hal, die toegang biedt tot de verschillende vertrekken van het appartement. Aan de voorzijde bevindt zich de slaapkamer, een prettige ruimte met voldoende plaats voor een tweepersoonsbed en kastruimte. De slaapkamer is gelegen aan de kant van het Park Seghweart (noorden) waardoor het zomers lekker koel is en 's ochtends heerlijk wakker worden is met de achtergrondgeluiden van de vogels uit het park. Vanuit de hal bereikt u tevens de vernieuwde badkamer uit 2023. Deze is modern uitgevoerd en voorzien van een douche, een wastafel met meubel, een toilet en de aansluiting voor de wasmachine en droger.

De woonkamer is ruim opgezet en staat in open verbinding met de keuken. De keuken is uitgerust met een gaskookplaat, oven en vaatwasser en biedt een praktische indeling met voldoende werkruimte. Vanuit de woonkamer heeft u toegang tot het ruime balkon op het zuiden, waar u heerlijk van de zon kunt genieten.

Wetenswaardigheden:
- Bouwjaar: 1978;
- Energielabel: C;
- Woonoppervlakte: 52 m2;
- Badkamer verbouwd in 2023;
- Eigen berging op begane grond;
- Kleinschalig complex;
- Actieve VvE: maandelijkse bijdrage € 102,-;
- CV-combiketel Intergas Kombi HRE 28/24A (2020);
- Ouderdoms-/asbestclausule van toepassing;
- Oplevering in overleg.

Interesse in deze woning? Neem direct contact met ons op en schakel uw eigen NVM-aankoopmakelaar in.
Uw NVM-aankoopmakelaar komt op voor uw belang en bespaart u veel tijd, geld en zorgen.
Adressen van collega NVM-aankoopmakelaars in Zoetermeer vindt u op Funda.nl.

Deze informatie is door ons met de nodige zorgvuldigheid samengesteld. Onzerzijds wordt echter geen enkele aansprakelijkheid aanvaard voor enige onvolledigheid, onjuistheid of anderszins, dan wel de gevolgen daarvan. Alle opgegeven maten en oppervlakten zijn indicatief.

Koopovereenkomst pas rechtsgeldig na ondertekening:
Een mondelinge overeenstemming tussen de particuliere verkoper en de particuliere koper is niet rechtsgeldig. Met andere woorden: er is geen koop. Er is pas sprake van een rechtsgeldige koop als de particuliere verkoper en de particuliere koper de koopovereenkomst hebben ondertekend.
Dit vloeit voort uit artikel 7:2 Burgerlijk Wetboek. Een bevestiging van de mondelinge overeenstemming per e-mail of een toegestuurd concept van de koopovereenkomst wordt overigens niet gezien als een 'ondertekende koopovereenkomst'.

Kenmerken

Vraagprijs € 265.000 k.k.
Status Verkocht
Aanvaarding In overleg
Bijdrage VvE € 102 p/m
Inschrijving KvK Ja
Jaarlijkse vergadering Ja
Periodieke bijdrage Ja, € 102 p/m
Reservefonds aanwezig Ja
Onderhoudsplan Ja
Opstalverzekering Ja
Object type Portiekflat, appartement
Soort bouw Bestaande bouw
Bouwjaar 1978
Soort dak Zadeldak
Energielabel C
Energielabel registratie 04-07-2018
Isolatie Muurisolatie, vloerisolatie, gedeeltelijk dubbel glas
Verwarming Cv-ketel
Warm water Cv-ketel
Cv ketel Intergas kombi hre 28/24a combiketel gas gestookt uit 2020 (eigendom)
Woonoppervlakte 52 m²
Inhoud 168 m³
Externe bergruimte 6 m²
Gebouwgeb. buitenruimte 11 m²
Aantal kamers 2 kamers (1 slaapkamers)
Aantal badkamers 1 badkamer
Badkamervoorzieningen Toilet, douche, wastafel, wastafelmeubel
Aantal woonlagen 1 woonlaag
Voorzieningen Mechanische ventilatie, tv-kabel, glasvezel kabel
Ligging Aan park, aan rustige weg, in woonwijk, vrij uitzicht
Balkon / dakterras Dakterras
Tuin Geen tuin
Schuur / berging Box
Voorzieningen (bergruimte) Voorzien van elektra
Soort garage Geen garage
Soort parkeergelegenheid Openbaar parkeren

Locatie en buurt

Wingerdpark 28, Zoetermeer

Ontdek de buurt

Energieverbruik in Zoetermeer

Energielabel deze woning

Deze woning heeft een energielabel C

Publicatie energielabel: 04-07-2018

Stroomverbruik per jaar

2210 kWh

(Gemiddelde appartement in Zoetermeer)

Gasverbruik per jaar

750 m³

(Gemiddelde appartement in Zoetermeer)

* Cijfers zijn afkomstig van het CBS en bedoeld als indicatie en kunnen verschillen voor deze woning

Maandlasten berekenen

Indicatie hypotheeklasten

Vraagprijs

€ 265.000 k.k.

Kosten koper (geschat): € 7.150

2% overdrachtsbelasting (€ 5.300) + notaris (€ 1.150) + taxatie (€ 700)

Totaal incl. k.k.

€ 272.150

Hypotheekbedrag

Eigen inleg

Spaargeld / overwaarde

Rente

Laagste 10-jaars rente

Bruto maandlasten

0 p/m

Netto maandlasten

0 p/m

Actuele rentes (indicatie)

10 jaar

NHG 2,78% Centraal Beheer
80% 3,04% Centraal Beheer

20 jaar

NHG 3,29% Centraal Beheer
80% 3,52% Centraal Beheer

30 jaar

NHG 3,41% Centraal Beheer
80% 3,7% Argenta

Hoe berekenen we dit?

Het rentepercentage is gebaseerd op de laagste 10 jaars vaste rente voor één hypotheekdeel. De vermelde rente (2.78% met NHG) is gecontroleerd op 22-05-2026. Deze berekening is gebaseerd op een annuïteitenhypotheek die volledig wordt afgelost, waarbij de maandlasten gedurende de gehele looptijd gelijk blijven. De werkelijke rente en netto maandlasten kunnen variëren, afhankelijk van uw persoonlijke situatie en de hypotheekverstrekker. Raadpleeg een financieel adviseur voor een nauwkeurige berekening en advies. Aan deze berekening kunnen geen rechten worden ontleend; het dient enkel als indicatie.

Kleurrijk NVM Makelaars & Taxateurs Zoetermeer

Bij Kleurrijk NVM Makelaars & Taxateurs staan wij voor u klaar. Bent u op zoek naar een makelaar die altijd bereikbaar is, snel handelt en u begeleidt bij de complexe aspecten van de aan- of verkoop van uw woning? Dan bent u bij ons aan het juiste adres. Met jarenlange ervaring in Zoetermeer, Lansingerland en Rotterdam bieden wij u deskundig advies. Wij verwelkomen u graag op ons hoofdkantoor in Zoetermeer aan de Willem Dreeslaan 214.

Kleurrijk NVM Makelaars & Taxateurs is de juiste keuze als u:

• Op zoek bent naar een specialist in aan- en verkoopbegeleiding;

• Waarde hecht aan laagdrempelige communicatie;

• Een voorkeur heeft voor duidelijke en directe communicatie;

• Belangrijk vindt dat uw makelaar goed naar u luistert;

• Het prettig vindt als uw makelaar flexibel beschikbaar is;

• Altijd direct contact wilt met uw makelaar;

• Een onafhankelijke taxatie wenst van uw woning door een van onze registertaxateurs (NWWI/NRVT).

Passie voor het vak

Vinod Lachmon, Register NVM-makelaar, heeft jarenlange ervaring opgedaan bij diverse grote makelaarskantoren in regio’s zoals Zoetermeer, Rotterdam, Lansingerland en Gouda. Hij beschikt over uitgebreide kennis en een groot netwerk. Vinod onderscheidt zich door zijn betrokkenheid, juridische precisie en de bereidheid om ook na de aan- of verkoop voor zijn klanten klaar te staan.

Kleurrijk NVM Makelaars & Taxateurs Zoetermeer

Wat is mijn huis nu waard?